Pulpi:
Pulpi Neubau-Penthouse-Apartment 3 Schlafzimmer Meernähe
Property ID: M1680L






































Price:
272.000 €
Living space:
97 sq. m.
No. of rooms:
4
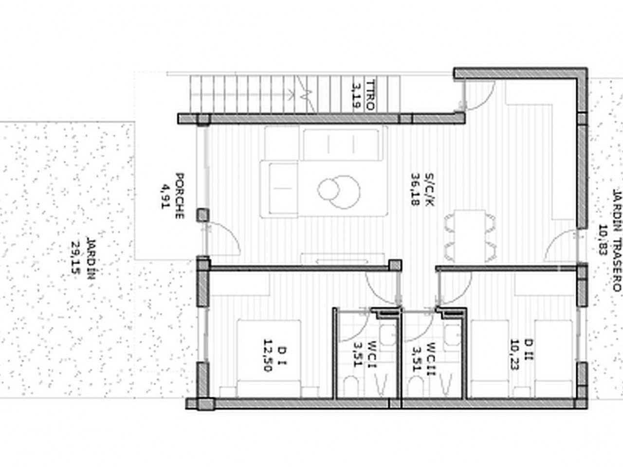
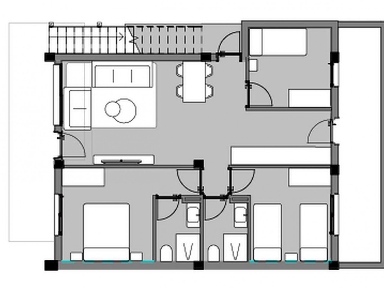
Die Neubau-Apartments bieten Strandapartments mit einem, zwei und drei Schlafzimmern und großen Terrassen.
Alle Wohnungen im Erdgeschoss verfügen über eine überdachte Veranda und einen Garten. Im ersten Stock nutzen alle Wohnungen die almerianische Sonne mit großzügigen Terrassen. Wer sich für ein Penthouse entscheidet, erhält nicht nur einen spektakulären Meerblick, sondern auch einen noch größeren Außenbereich auf der Terrasse.
Alle Dachterrassen sind mit Dusche, Wasserhahn, Strom- und Fernsehanschluss ausgestattet, und es besteht die Möglichkeit, einen Grill aufzustellen.
Alle Wohnungstypen verfügen über einen Parkplatz im Untergeschoss.
Die Anlage ist so konzipiert, dass sie große Innenräume bietet, mit schönen Gärten und Gemeinschaftsbereichen, zu denen ein großer Swimmingpool mit Whirlpool gehört, der von einer großen Wiese aus natürlichem Gras mit Duschen, Liegestühlen und Sonnenschirmen aus Heidekraut umgeben ist, die auch über Gemeinschafts-WIFI verfügt.…
Diese großzügigen Gemeinschaftsbereiche haben auch einen Kinderspielplatz Bereich innerhalb eines geschlossenen Perimeter der Sicherheit.
Diese Bau-Phase hat eine Menge zu bieten, mit großartigen Annehmlichkeiten, einer ruhigen Lage in einer spektakulären natürlichen Umgebung, Zugang zu allen Dienstleistungen des täglichen Lebens und hervorragenden Sportanlagen.
Die Apartments befinden sich in unmittelbarer Nähe der Strände Playa Los Nardos und Playa La Entrevista, an der Küste von Almería, in der Nähe der Gemeinden Águilas und Vera.
Genießen Sie die Strände von La Entrevista und Los Nardos, die sich durch ihr kristallklares Wasser auszeichnen, das sich hervorragend zum Tauchen und Schnorcheln eignet und nur wenige Schritte von Ihrer Haustür entfernt ist. Ganz in der Nähe von Mar de Pulpí können Sie außerdem die Strände von San Juan de los Terreros, Mar Serena, Mar Rabiosa, Calipso und viele mehr genießen.
Mar de Pulpí Los Narcisos ist über die Mittelmeerautobahn gut an die großen Städte Almeria und Murcia angebunden. Nur 2 km entfernt liegt das Stadtzentrum von San Juan de los Terreros, wo Sie alle Annehmlichkeiten des täglichen Lebens vorfinden. Wenn Sie abends nicht ausgehen möchten, haben Sie den Vorteil, dass Sie Ihr eigenes Einkaufszentrum und das Restaurant La Geoda direkt vor der Haustür haben.
Abenteuerlustige können in Mar de Pulpí die größte Geodenmine Europas mit ihren unglaublich durchsichtigen Kristallen entdecken, die sich in einer alten Eisen- und Bleimine in der Nähe befindet.
In der Umgebung von Mar de Pulpí befinden sich die farbenprächtigen Golfplätze Aguilón Golf und Desert Springs. Diese Plätze befinden sich nur wenige Kilometer von der Anlage entfernt.
Type of apartment: Penthouse
Storey: 2
Subject to commission: no
Useable area: 76 sq. m.
Kitchen: Fitted kitchen
Bathroom: Shower
Number of bedrooms: 3
Number of bathrooms: 2
Terrace: 2
Pool: yes
Basement: Storage room
Lift: yes
Suitable as holiday home: yes
Number of parking spaces: 1 x Underground parking
Quality of fittings: Superior
Year of construction: 2025
Vacant from: sofort
Condition: First occupier
PROVISIONSFREI - Keine Käuferprovision
Alle Preise zzgl. Nebenerwerbskosten 10% IVA (Spanische MwSt.) bei Neubauten bzw. ITP (Grunderwerbssteuer) bei Bestands-Immobilien sowie ca. 2-3% Notar-/Gerichtskosten. Die von uns gemachten Informationen beruhen auf Angaben des Anbieters/Bauträgers. Für die Richtigkeit und Vollständigkeit der Angaben kann keine Gewähr bzw. Haftung übernommen werden. Tatsächliche Flächenangaben und Preise können je nach Verkaufsstatus, Immobilientyp oder durch unterschiedliche Grundstücksgrößen abweichen. Wohnflächenangaben bei Spanien-Immobilien beziehen sich zumeist auf die bebaute Grundfläche inklusive zugehöriger Terrassen/Balkone soweit nicht anders angegeben. Bei projektierten und Neubau-Objekten werden teilweise computeranimierte Visualisierungen gezeigt - Abweichungen im Realbau möglich. Abbildungen können teilweise nicht enthaltene Extras/Sonderausstattungen zeigen. Zwischenverkauf, Preisänderungen und Irrtümer sind vorbehalten.
Wir weisen auf unsere Allgemeinen Geschäftsbedingungen hin. Durch weitere Inanspruchnahme unserer Leistungen erklären Sie die Kenntnis und Ihr Einverständnis.
You might also like
New build, 3 bedroom, 2 bathroom Apartment in Manilva
GOLFER-TRAUM: Neubau Reihen-Villa an TOP 60-Loch-Golfanlage
Gottschalk Immobilien Ltd. & Co KG
Mr. Jürgen Gottschalk
Stanleystr. 7
65189 Wiesbaden
Phone: +49 611 5045353
Office: +49 611 5045353
Mobile phone: +49 162 4734859
Fax: +49 611 5045351












































