Benidorm:
New Build project of 10 modern design villas, in a natural setting with views of the sea and the mountains, near the Puig Campana golf course, and ...
Property ID: M2174














































Price:
595.000 €
Living space:
463 sq. m.
Plot size:
250 sq. m.
No. of rooms:
4
New Build project of 10 modern design villas, in a natural setting with views of the sea and the mountains, near the Puig Campana golf course, and a short distance from the towns of Finestrat and Benidorm.
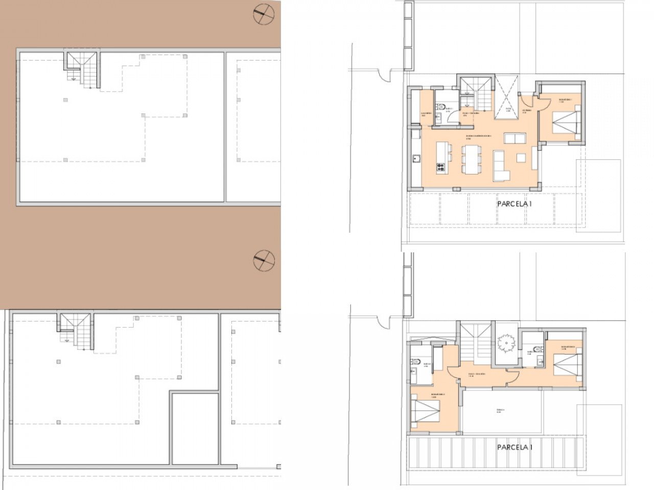
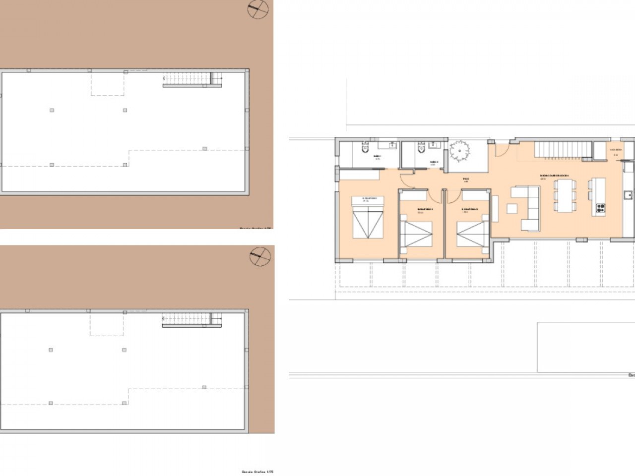
The project will include two types of villas, with 1 or 2 floors, 3 double bedrooms, 2 or 3 complete bathrooms, living-dining room with integrated kitchen, laundry room, large terrace and garden, private pool and beach area, outdoor parking, 1 or 2 multipurpose basements and in some models closed underground garage.
Villas Puig Campana is located in a privileged environment on the Costa Blanca, in an elevated area at the foot of the mountains, surrounded by nature, with excellent views of the sea and its surroundings. The resort is very well connected by road with the nearby town of Finestrat, 10 minutes by car from shopping centers, the A7 motorway, the beaches and the nearby towns of Benidorm and Villajoyosa, and 30 minutes from the city of Alicante and its international airport.
Type of house: Villa
Subject to commission: no
Useable area: 16 sq. m.
Kitchen: Fitted kitchen
Bathroom: Shower
Number of bedrooms: 3
Number of bathrooms: 3
Garden: yes
Pool: yes
Basement: Full cellar
Suitable as holiday home: yes
Number of parking spaces: 1 x Garage
Quality of fittings: Luxury
Floor covering: Tiles
Condition: First occupier
You might also like
Neubau-Luxus-Villa mit Pool in bester Lage Atalaya
Gottschalk Immobilien Ltd. & Co KG
Mr. Jürgen Gottschalk
Stanleystr. 7
65189 Wiesbaden
Phone: +49 611 5045353
Office: +49 611 5045353
Mobile phone: +49 162 4734859
Fax: +49 611 5045351



























































