Málaga:
Sea-view Luxury Apartments In Benahavis
Property ID: G18829-15641






















Price:
859.000 €
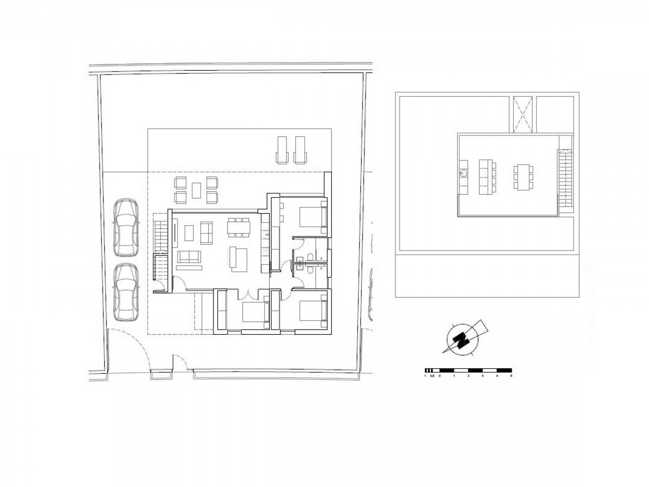
Living space:
121 sq. m.
No. of rooms:
4
This resort stands on a privileged location above the golf valley, an outstanding place on the Costa del Sol only 10 minutes from Marbella and from the cosmopolitan Puerto Banus marina. It is located at the highest point of the hill, allowing owners to enjoy impressive panoramic views of the entire coast, the golf valley, the La Concha Mountains and the Mediterranean Sea. This magnificent residential complex comprises of 56 three and four bedroom exclusive properties with panoramic sea views, distributed in 7 blocks with only 2 properties on each floor to make it even more exclusive. Each property is perfectly designed and thought with your wellbeing and comfort at all times. All the bedrooms in the properties are en-suite, and there is an extra bathroom as well for guests" privacy. The master bedroom has a convenient dresser for your daily comfort, and every bedroom has direct access to the terrace.…
The majority of terraces are roofed, except for the penthouses which are covered with a beautiful pergola. The kitchens in all the properties are fully-equipped with designer furniture and energy-saving appliances. You will only need to decorate them in your own style and your home will be ready to live. Depending on their exact location, apartments have private garden, rooftop terrace and private pool. Within the gated community the resort will enjoy two swimming pools, a gym and co-working area. One of the most special areas within the residential complex is its tiered gardens, which add additional beauty to the resort with their fresh greenery and colourful flowers all year round. The project is located half-way between the airports of Malaga and Gibraltar, which makes them both accessible within a little more than 40 minutes by car.
Type of apartment: Appartment
Subject to commission: no
Kitchen: Fitted kitchen
Bathroom: Shower
Number of bedrooms: 3
Number of bathrooms: 4
Pool: yes
Suitable as holiday home: yes
Quality of fittings: Luxury
Condition: First occupier
PROVISIONSFREI - Keine Käuferprovision
You might also like
Gottschalk Immobilien Ltd. & Co KG
Mr. Jürgen Gottschalk
Stanleystr. 7
65189 Wiesbaden
Phone: +49 611 5045353
Office: +49 611 5045353
Mobile phone: +49 162 4734859
Fax: +49 611 5045351
















































