Estepona:
Herrliche Neubau-Apartments + Penthouses Meerblick
Objekt-Nr.: 886








Bsp. Grundriss Typ C 2 2

Bsp. Grundriss Typ D 2 2

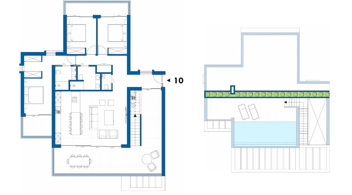
Bsp. Grundriss Penthouse Typ E 3 2










Preis:
455.000 €
Wohnfläche ca.:
84 m²
Zimmeranzahl:
3
Dieses herausragende Neubau-Projekt befindet sich im stark nachgefragten Südwesten von Estepona. Auf der Südseite des Objekts gibt es einen wunderschönen Meerblick und auf der Nordseite einen spektakulären Blick auf die Berge.
Das Projekt ist infrastrukturell hervorragend gelegen und verfügt über eine direkte Anbindung sowohl an die Schnellstraße als auch an die Maut-Autobahn. Darüber hinaus hat das kürzlich errichtete Estepona-Krankenhaus dafür gesorgt, dass die öffentlichen Bereiche und Straßen modern und mit Parks und Grünflächen ausgestattet sind.
Wohnungstyp: Etagenwohnung
Etage: 1
Etagenanzahl: 3
Provisionspflichtig: nein
Nutzfläche ca.: 62 m²
Küche: Einbauküche
Bad: Dusche
Anzahl Schlafzimmer: 2
Anzahl Badezimmer: 2
Terrasse: 1
Garten: ja
Pool: ja
Klimaanlage: ja
Fahrstuhl: ja
Seniorengerecht: ja
Als Ferienwohnung geeignet: ja
Anzahl der Parkflächen: 1 x Parkhaus
Qualität der Ausstattung: Luxus
Baujahr: 2024
Bezugsfrei ab: 09.2024
Bodenbelag: Fliesen
PROVISIONSFREI - Keine Käuferprovision
Die von uns gemachten Informationen beruhen auf Angaben des Anbieters/Bauträgers. Für die Richtigkeit und Vollständigkeit der Angaben kann keine Gewähr bzw. Haftung übernommen werden. Tatsächliche Flächenangaben und Preise können je nach Verkaufsstatus, Immobilientyp oder durch unterschiedliche Grundstücksgrößen abweichen. Wohnflächenangaben bei Spanien-Immobilien beziehen sich zumeist auf die bebaute Grundfläche inklusive zugehöriger Terrassen/Balkone soweit nicht anders angegeben. Bei projektierten und Neubau-Objekten werden teilweise computeranimierte Visualisierungen gezeigt - Abweichungen im Realbau möglich. Abbildungen können teilweise nicht enthaltene Extras/Sonderausstattungen zeigen. Zwischenverkauf, Preisänderungen und Irrtümer sind vorbehalten.
Weitere Informationen über unsere Dienstleistungen und Angebote finden Sie unter
www.spanien-villa.com und www.costablanca-traumhaus.com
Wir weisen auf unsere Allgemeinen Geschäftsbedingungen hin. Durch weitere Inanspruchnahme unserer Leistungen erklären Sie die Kenntnis und Ihr Einverständnis.
Das könnte Ihnen auch gefallen
Gottschalk Immobilien Ltd. & Co KG
Herr Jürgen Gottschalk
Stanleystr. 7
65189 Wiesbaden
Telefon: +49 611 5045353
Büro: +49 611 5045353
Mobil: +49 162 4734859
Fax: +49 611 5045351


























































