Sucina:
Mediterranean-style detached houses with private pool with 6 models to choose from in a gated golf community at Peraleja Golf Resort in Costa Cálid...
Property ID: M2279D








































Price:
625.000 €
Living space:
132 sq. m.
Plot size:
600 sq. m.
No. of rooms:
5
Mediterranean-style detached houses with private pool with 6 models to choose from in a gated golf community at Peraleja Golf Resort in Costa Cálida.
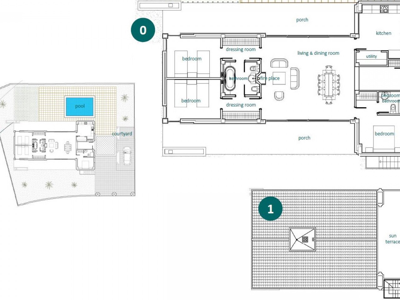
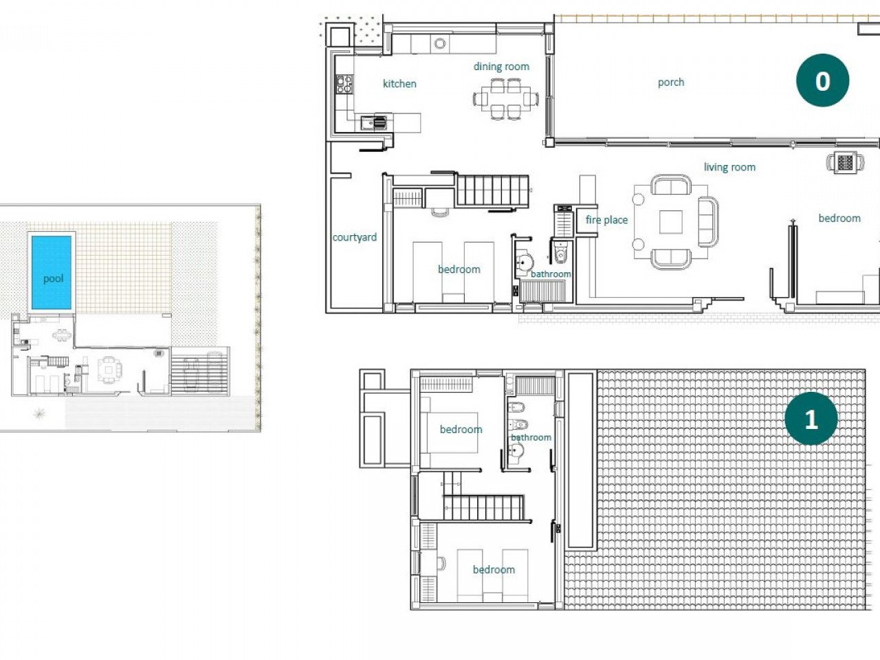
20 detached villas with 6 models to choose from with 2, 3 or 4 bedrooms and 1, 2 or 3 floors on plots ranging from 375 to 800 m2. Some units have a rooftop solarium. Designed with sloping roofs, bright living/dining room with a cosy wood-burning fireplace and natural materials such as wood and stone, these homes blend seamlessly into the surrounding landscape, while offering elegant and timeless interiors
These Mediterranean homes are set on spacious plots, each with a private pool, fully landscaped garden and parking space.
Perpleja Origins is located in the prestigious Peraleja Golf Resort, in the Murcia region of southern Spain. The resort has a 24-hour security gate, piano bar and clubhouse with gourmet restaurant. The complex is surrounded by protected natural areas where hiking, jogging and cycling trails are being developed for residents. The 18-hole golf course, originally designed by the legendary Severiano Ballesteros, is currently being renovated and is scheduled to reopen in late 2025. Some homes and the social club enjoy distant sea views. Murcia Airport is 25 km (15 min by car) from the resort.
Type of house: Villa
Subject to commission: no
Useable area: 16 sq. m.
Kitchen: Fitted kitchen
Bathroom: Shower
Number of bedrooms: 4
Number of bathrooms: 2
Terrace: 1
Garden: yes
Pool: yes
Air condition: yes
Suitable as holiday home: yes
Number of parking spaces: 2 x Outside parking space
Quality of fittings: Luxury
Condition: First occupier
You might also like
MALLORCA Nordost: Tolle NEUBAU-Apartments und Townhouses
Gottschalk Immobilien Ltd. & Co KG
Mr. Jürgen Gottschalk
Stanleystr. 7
65189 Wiesbaden
Phone: +49 611 5045353
Office: +49 611 5045353
Mobile phone: +49 162 4734859
Fax: +49 611 5045351

























































