Wiesbaden:
Sonnenberg - Exklusiv und individuell wohnen in toller Lage
Property ID: 742

742 Titel

Ansicht Haus 1+2

Ausblick Burg

Burghof

Burghof Veranstaltungsfläche

Hofgartenplatz Gastro Geschäfte

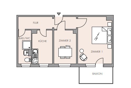
Grundriss WE2







Price:
1.320.000 €
Living space:
156,26 sq. m.
No. of rooms:
4
Diese Wohnlage in Wiesbaden ist kaum zu toppen:
Zwischen zwei Hügeln in den Ausläufern des Taunus gelegen, führt Sonnenberg mit der markanten Burg fast ein eigenes städtisches Leben. Von der Burg Sonnenberg in Steinwurfweite ergibt sich ein herrlicher Ausblick auf das Tal, die Altstadt und auf Wiesbaden.
Trotzdem ist das Stadtzentrum der Landeshauptstadt in nur wenigen Minuten (4 km) zu erreichen. Der nahe gelegene Hofgartenplatz (120 m) mit seiner Infrastruktur bietet alles Nötige für den täglichen Bedarf.
In diesem perfekten Umfeld auf einem riesigen Parkgrundstück entstehen in 2 Häusern nur 6 neue, individuelle Wohnungen zwischen 86 und 201 m² Wohnfläche - zumeist mit eigenem großen Gartenanteil. Informieren Sie sich über dieses einmalige Angebot.
Angebot Wohnung 2: Wohnen/Essen/Küche offen, Master-Schlafzimmer mit Ankleidezimmer und Bad ensuite, 2. Schlafzimmer plus Bad, Dachbalkon/Dachterrasse, Sondernutzungsrecht Garten ca. 163 m².
FORDERN SIE JETZT DIE AUSFÜHRLICHE INFO-BROSCHÜRE AN UND VEREINBAREN SIE EINEN UNVERBINDLICHEN BESICHTIGUNGSTERMIN.
Type of apartment: Single storey apartment
Storey: 1
Number of floors: 2
Subject to commission: no
Kitchen: Open
Bathroom: Shower, Bathtub
Number of bedrooms: 2
Number of bathrooms: 2
Balcony: 1
Terrace: 1
Garden: yes
Basement: Storage room
Lift: yes
Number of parking spaces: 1 x Underground parking , per item 40.000 €
Quality of fittings: Luxury
Year of construction: 2024
Vacant from: 12.2024
Floor covering: Tiles, Parquet flooring
Condition: First occupier
Energy class: C
Heating: Central heating
Type of energy certificate: demand certificate - valid from 01.02.2023 to 31.01.2033
Energy efficiency class: C
PROVISIONSFREI - Keine Käuferprovision
Die von uns gemachten Informationen beruhen auf Angaben des Anbieters/Bauträgers. Für die Richtigkeit und Vollständigkeit der Angaben kann keine Gewähr bzw. Haftung übernommen werden. Tatsächliche Flächenangaben und Preise können je nach Verkaufsstatus, Immobilientyp oder durch unterschiedliche Grundstücksgrößen abweichen. Bei projektierten und Neubau-Objekten werden teilweise computeranimierte Visualisierungen gezeigt - Abweichungen im Realbau möglich. Abbildungen können teilweise nicht enthaltene Extras/Sonderausstattungen zeigen. Zwischenverkauf, Preisänderungen und Irrtümer sind vorbehalten.
Weitere Angebote finden Sie unter www.sofort-traumhaus.de und www.anlage-immobilien-rendite.de
Neubau-Angebote Spanien-Immobilien unter:
www.spanien-villa.com und www.costablanca-traumhaus.com
Wir weisen auf unsere Allgemeinen Geschäftsbedingungen hin. Durch weitere Inanspruchnahme unserer Leistungen erklären Sie die Kenntnis und Ihr Einverständnis.
You might also like
Traumhaftes Domizil im Weinort - Exklusive Anlage auf dem Gutshof
Vermietetes Ferienapartment bei Rügen - Super-Kapitalanlage
Gottschalk Immobilien Ltd. & Co KG
Mr. Jürgen Gottschalk
Stanleystr. 7
65189 Wiesbaden
Phone: +49 611 5045353
Office: +49 611 5045353
Mobile phone: +49 162 4734859
Fax: +49 611 5045351
































